+
|
EXEMPLE DE REALISATIONS |
|---|
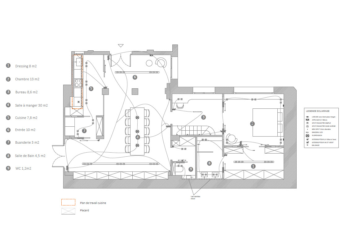
Raphaël et Laura souhaitaient pour leur appartement de 86 m2 :
- Ouvrir la cuisine sur le salon/salle à manger pour avoir un grand open space
- Créer une suite parentale avec un dressing et une salle de bain avec double vasque et douche à l’italienne
- Une buanderie assez grande si possible pas très loin de la cuisine
Notre équipe a travaillé sur le plan d’aménagement en cherchant à agrandir et simplifier les espaces, notamment grâce à la création d’une verrière de séparation entre la cuisine et la salle à manger.
Les volumes ont été fluidifiés grâce à l’utilisation de portes coulissantes.
Le client est satisfait de notre mission ce qui est l’objectif premier de la maison Véronique Toubiana.
- Ouvrir la cuisine sur le salon/salle à manger pour avoir un grand open space
- Créer une suite parentale avec un dressing et une salle de bain avec double vasque et douche à l’italienne
- Une buanderie assez grande si possible pas très loin de la cuisine
Notre équipe a travaillé sur le plan d’aménagement en cherchant à agrandir et simplifier les espaces, notamment grâce à la création d’une verrière de séparation entre la cuisine et la salle à manger.
Les volumes ont été fluidifiés grâce à l’utilisation de portes coulissantes.
Le client est satisfait de notre mission ce qui est l’objectif premier de la maison Véronique Toubiana.






